Senioren aufgepasst: Barrierearmes Wohnen mit ebenerdiger Dusche, Aufzug und Sozialstation
Grünau-Mitte, Offenburger Str. 15 /0601
Ausstattung / Merkmale
- ✓ Balkon
- ✓ Dusche
- ✓ Linoleumboden
- ✓ Personenaufzug
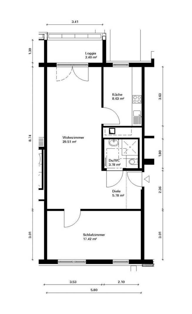
Objektbeschreibung
Beschreibung
Die 11-geschossige Wohnanlage wurde 1985 erbaut und 2017 generalsaniert. Die hochwertig sanierten Wohnungen verfügen über eine Vielfalt von Grundrissen. Von einer kleinen 1-Raum-Wohnung bis hin zu einer geräumigen 3-Raum-Wohnung ist in diesem Objekt alles vorhanden. Der ebenerdige Aufzug fährt bis in das 10. Wohngeschoss. Die Wohnungen verfügen teilweise über einen Balkon oder einer Loggia. Die barrierearme Ausstattung der Wohnung spricht besonders Senioren an. Im Erdgeschoss der Offenburger Straße 9–15 befinden sich die Begnungsstätte und Sozialstation der 'AWO'.
Ausstattung
Die Wohnung verfügt über eine Fußbodenheizung. Die Innentüren sind weiß. Der Fußboden hat einen Linoleumboden. Die Wände und Decken haben weiße Raufasertapeten.
Energieausweis
-
EnergieausweistypBedarfsausweis
-
Ausstellungsdatum06.10.2014
-
Gültig bis10-2024
-
GebäudeartWohngebäude
-
Baujahr1985
-
PrimärenergieträgerFernwärme
-
Endenergiebedarf61,00 kWh/(m²·a)
Lage
Mitten im Herzen von Grünau wohnen Sie unweit des Kulkwitzer Sees. Neben dem Schönauer Park und dem Robert-Koch-Park bietet Grünau attraktive Freizeitangebote zum Baden, Spazieren und andere zahlreiche sportliche Aktivitäten. Durch die Vielfalt diverser Bus-, Straßen- und S-Bahnlinien ist die Anbindung an andere Orte optimal. Die Dinge des täglichen Bedarfs erhalten Sie in den nahe gelegenen Einkaufscentern 'Allee-Center' und 'PEP-Center'. Verschiedene Gesundheitszentren mit Fach- und Allgemeinärzten, aber auch Physiotherapien, Apotheken und Sanitätshäusern ermöglichen eine solide und gesicherte Gesundheitsversorgung.
Sie sehen gerade einen Platzhalterinhalt von Google Maps. Um auf den eigentlichen Inhalt zuzugreifen, klicken Sie auf die Schaltfläche unten. Bitte beachten Sie, dass dabei Daten an Drittanbieter weitergegeben werden.
Mehr InformationenOffenburger Str. 15, 04209 Leipzig, Deutschland (auf Google Maps ansehen)








